Ressourcenschonender Umgebung mit Bestand durch die Kernsanierung eines Einfamilienhauses in Möhlin
Im historischen Dorfteil Riburg in Möhlin durften wir ein Einfamilienhaus aus den 1960er-Jahren umfassend sanieren und modernisieren. Die Kernsanierung zielte darauf ab, das vorhandene Potenzial des Gebäudes und der Parzelle optimal zu nutzen und den Wohnraum an die Bedürfnisse der heutigen Zeit sowie der Familie anzupassen.
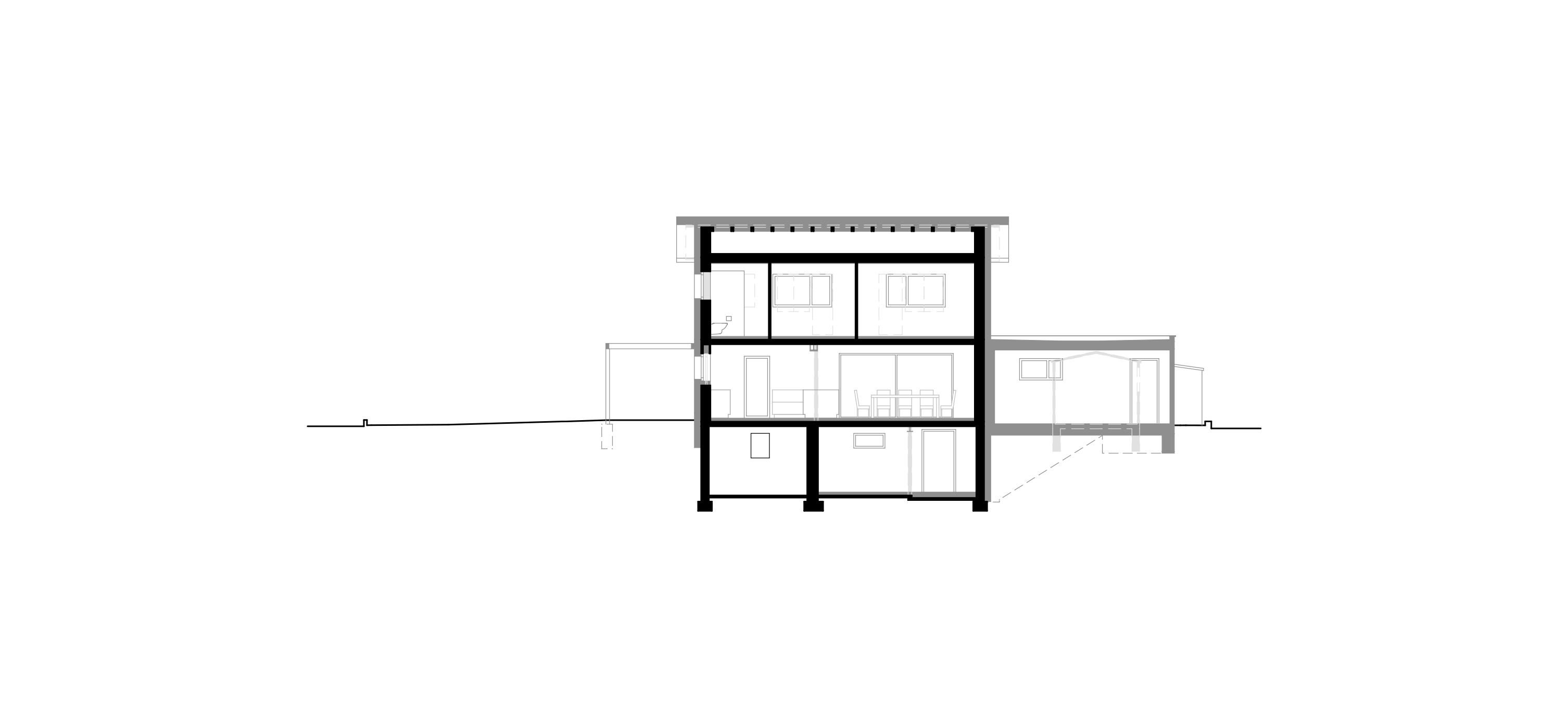
Ein zentrales Element des Projekts war die Wohnraumerweiterung im Obergeschoss: Der ursprüngliche kleine Balkon wurde zu einem vollwertigen Innenraum ausgebaut, wodurch zusätzlicher Wohnraum geschaffen wurde. Im Erdgeschoss öffneten wir die engen, geschlossenen Räume und schufen eine offene, lichtdurchflutete Wohnatmosphäre, die modern und einladend gestaltet ist. Diese Umstrukturierung sorgt für ein harmonisches und grosszügiges Raumgefühl.
Im Westen wurde eine Doppelgarage angebaut, die die funktionalen Anforderungen der vierköpfigen Familie erfüllt. Das eigentliche Highlight befindet sich jedoch im Osten: Hier wurde die grosszügige Gartenanlage neugestaltet und über einen überdachten Sitzplatz mit dem Wohnhaus verbunden. Diese Integration von Innen- und Aussenbereich schafft eine besondere Verbindung zwischen Architektur und Natur und steigert die Lebensqualität nachhaltig.
Dieses Projekt zeigt, wie durch eine durchdachte Sanierung und Erweiterung ein zeitgemässer, funktionaler und ästhetischer Wohnraum geschaffen werden kann, der den Charme des ursprünglichen Gebäudes bewahrt und gleichzeitig die Lebensqualität seiner Bewohner steigert.