Ersatzneubau Wohnhaus Möhlin

  • Baujahr Wohnhaus 1991
  • Ersatzneubau Ökonomieteil 2026
  • 100% Architekturleistungen

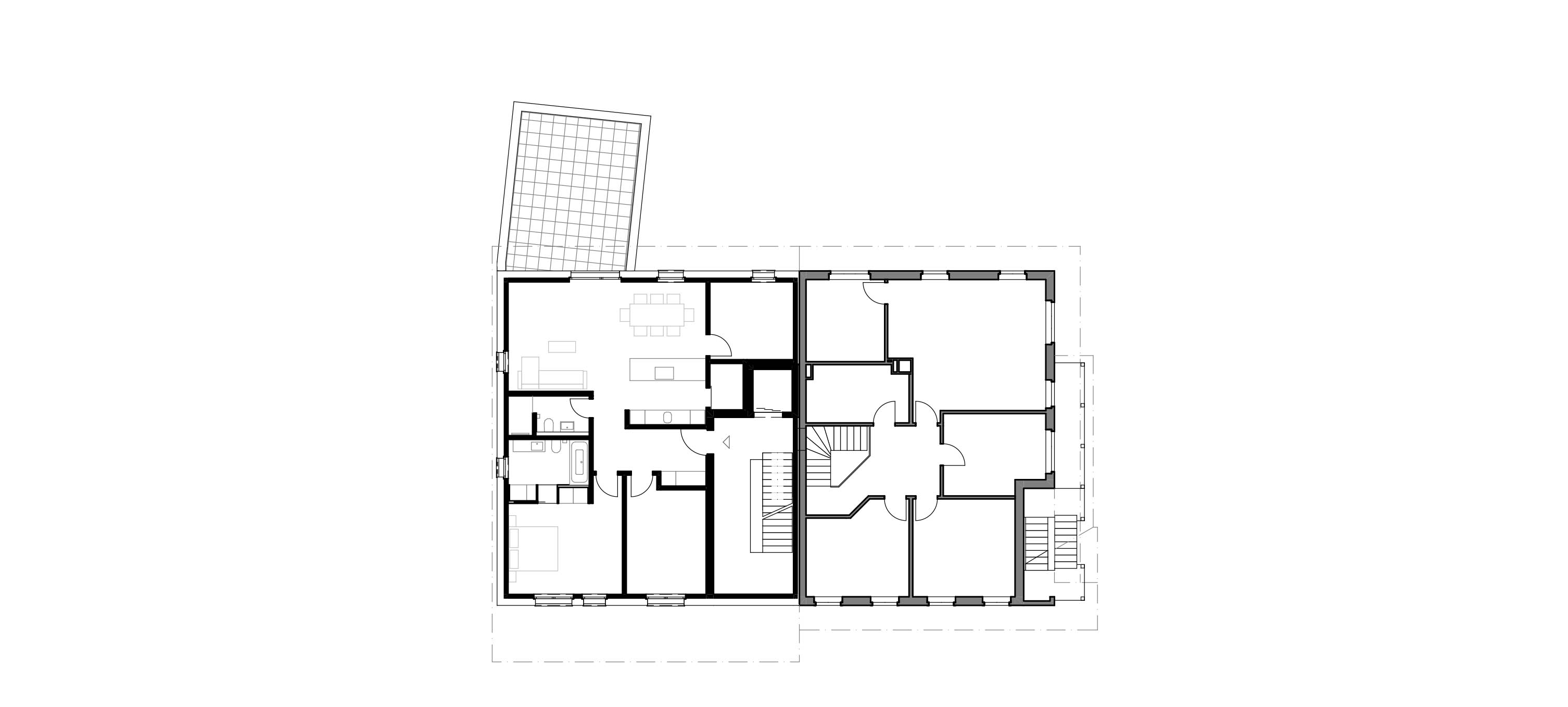
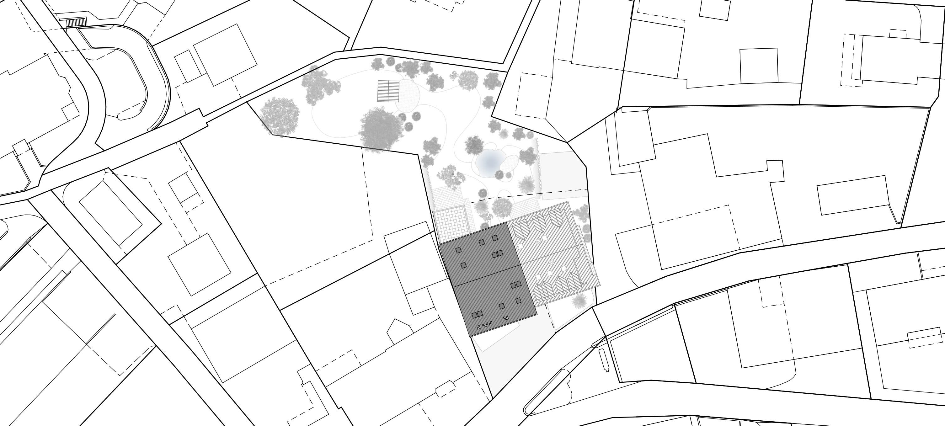
Mitten im historischen Zentrum der Gemeinde Möhlin entsteht ein Projekt, das den Bestand respektvoll weiterentwickelt und gleichzeitig neuen, hochwertigen Wohnraum schafft. Das Grundstück liegt in der Kernzone 1 und umfasst ein bestehendes Wohnhaus mit zwei Wohnungen sowie einem angrenzenden Ökonomieteil, der im Rahmen des Projekts als Ersatzneubau erneuert wird.

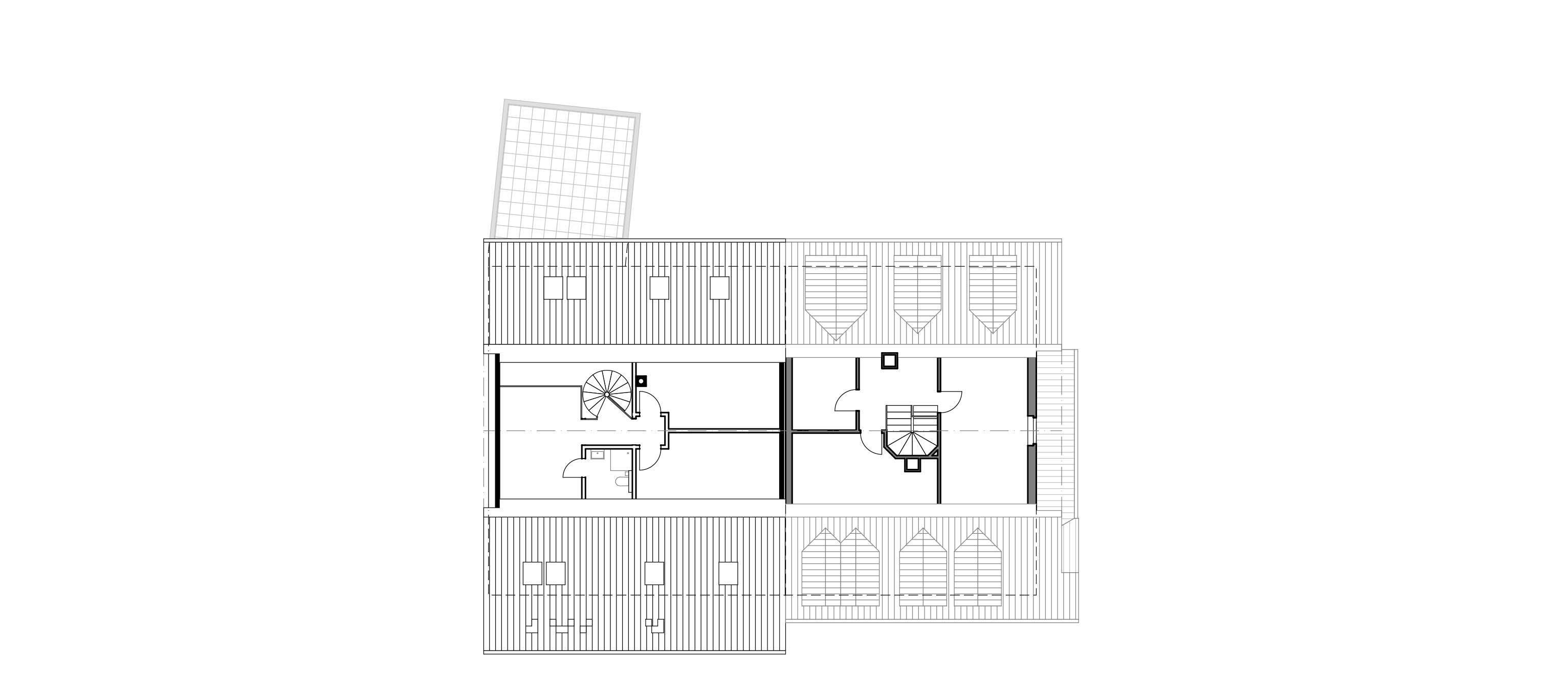
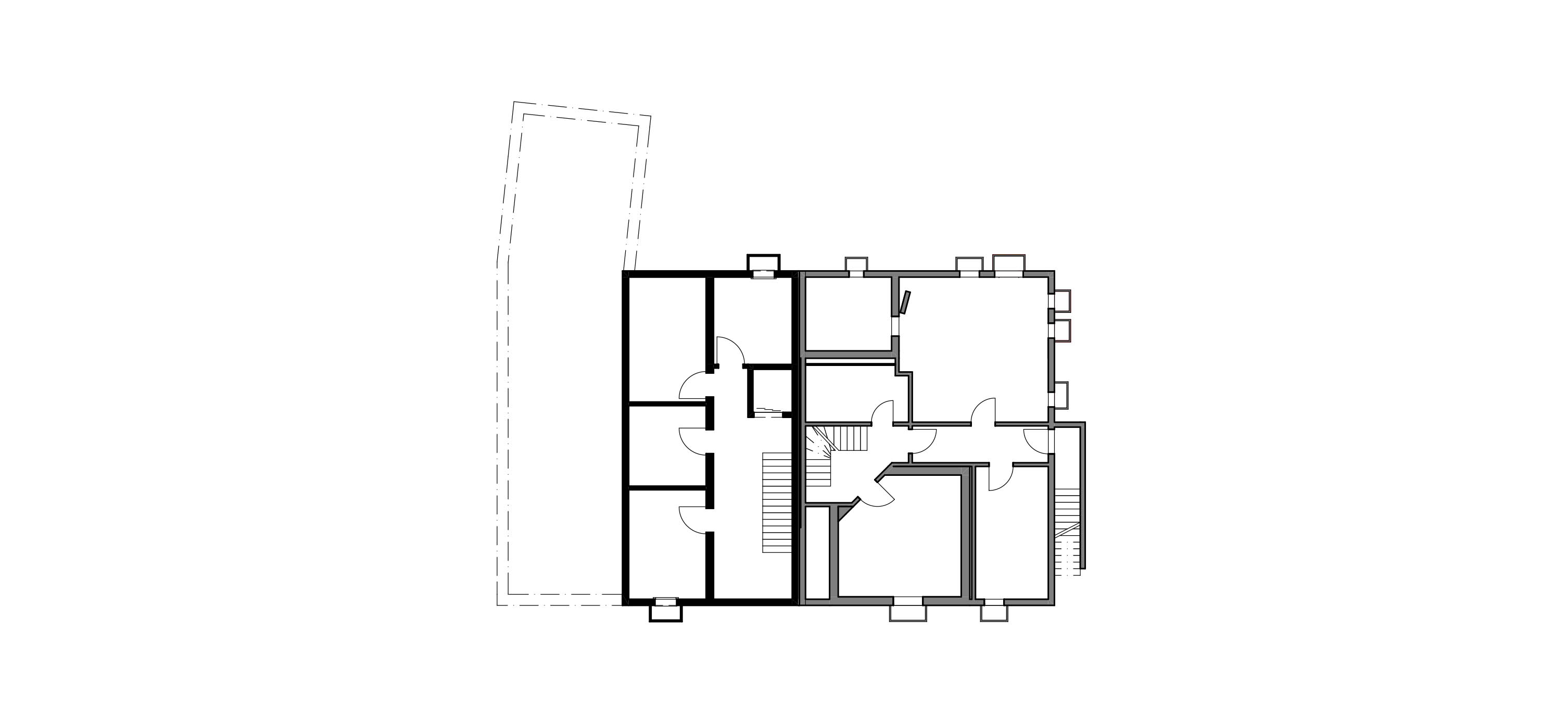
Der neue Baukörper übernimmt die bestehende Linienführung, gleicher Grenzabstand, eine vergleichbare Volumetrie und ein durchlaufendes Satteldach, das den Neubau harmonisch mit dem Wohnhaus verbindet. Während das Wohnhaus in seiner Substanz erhalten bleibt, entstehen im neu aufgebauten Ökonomieteil drei grosszügige Wohneinheiten, die moderne Wohnqualität mit ortsbaulicher Einbindung verbinden.

Die Erschliessung der Wohnungen erfolgt über ein grosszügig gestaltetes Treppenhaus mit integrierter Liftanlage. Diese klare, direkte Lösung sorgt für eine optimale Zugänglichkeit, komfortabel für alle Altersgruppen und ist für eine langfristige Nutzung ausgelegt.

Besonders aussergewöhnlich ist die Lage der Parzelle. Das Leben inmitten des Dorfzentrums, wo sämtliche Angebote bequem zu Fuss erreichbar sind, und gleichzeitig eine bemerkenswert, grosse Gartenlandschaft im rückwärtigen Bereich. Obstbäume, ein kleiner Weiher und weitläufige Grünflächen schaffen einen idyllischen Aussenraum und bieten einen hohen Erholungswert.

Ein Projekt, das für unterschiedlichste Lebensphasen attraktiv ist – vom jungen Paar bis zur älteren Person, die barrierefreien Wohnkomfort schätzt.