Im Herzen von Elfingen entsteht ein Neubauprojekt, das Tradition und zeitgemässe Wohnnutzung miteinander verbindet. Das Grundstück liegt in der historischen Dorfzone entlang der Kantonsstrasse und befindet sich gleichzeitig innerhalb des ISOS-Perimeters, eine sensible Ausgangslage, die besondere Anforderungen an Architektur, Materialisierung und Ortsbildpflege stellt.
Das ursprüngliche Gebäude, bestehend aus einem Wohnteil und einem grosszügigen Ökonomieteil unter einem durchlaufenden Satteldach, wurde durch einen Brand vollständig zerstört. Im Rahmen des Wiederaufbaus war es unser Ziel, die ortsbauliche Struktur und den Charakter des Bestandsgebäudes zu bewahren und gleichzeitig neue, zeitgemässe Wohnräume zu schaffen.
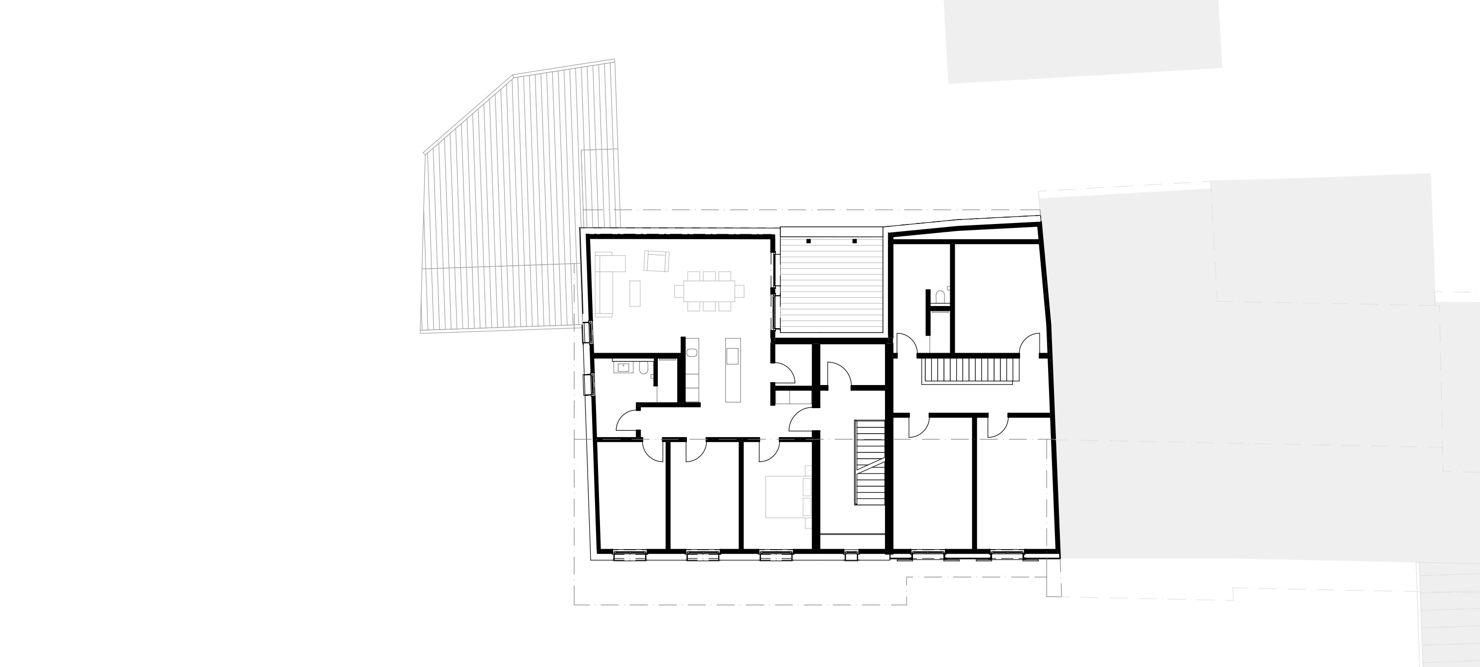
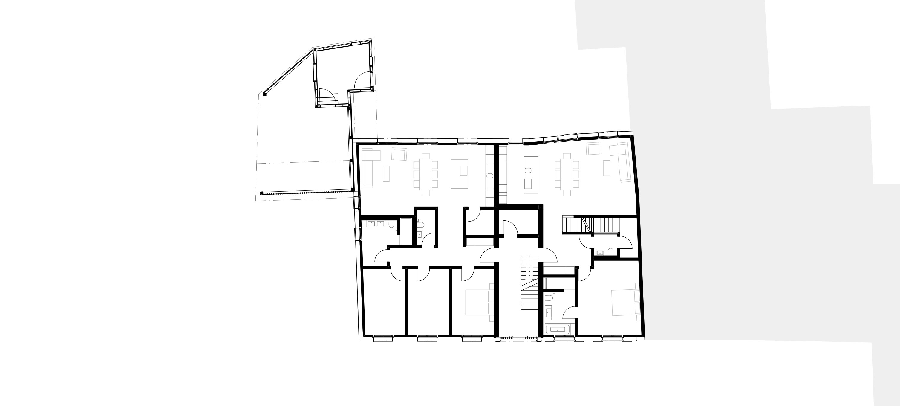
Der Neubau übernimmt daher die volumetrische Grundform sowie das prägende, durchgehende Satteldach des historischen Gebäudes. Zusammen mit dem direkt angrenzenden Nachbargebäude ist es eine wichtige Voraussetzung, um die typische Ortsbilderscheinung des Dorfkerns zu bewahren. Neu entstehen drei moderne Wohneinheiten, welche sich wieder als Ökonomieteil und Wohnteil in der äusseren Erscheinung ableiten und sich somit in das typische, kantonale Dorfbild integrieren. Das Dachgeschoss bleibt, wie ursprünglich, unausgebaut und erhält so die charakteristische, ruhige Grosszügigkeit des Volumens.
Die Planung erfolgte in enger Zusammenarbeit mit dem Kanton, der Ortsbildpflege, der aargauischen Gebäudeversicherung sowie weiteren Fachstellen. Dabei wurden nicht nur die gestalterischen und ortsbaulichen Anforderungen berücksichtigt, sondern auch zusätzliche Themen wie der Hochwasserschutz, die in dieser Zone eine wesentliche Rolle spielen.